BASIC INFORMATION

Core identification information for the metadata record
"Peyton" Regulatory Plan
Bosnia and Herzegovina (bih)

The detailed planning document, the "Pejton" Regulatory Plan, is based on the adopted land use policy, development strategies and programs, infrastructure development plans and other plans and programs of importance for spatial development planning. The period for which the planning document is adopted is defined by the decision to proceed with the preparation or amendment of the planning document. The detailed planning documents are mutually coordinated.

Dataset
English

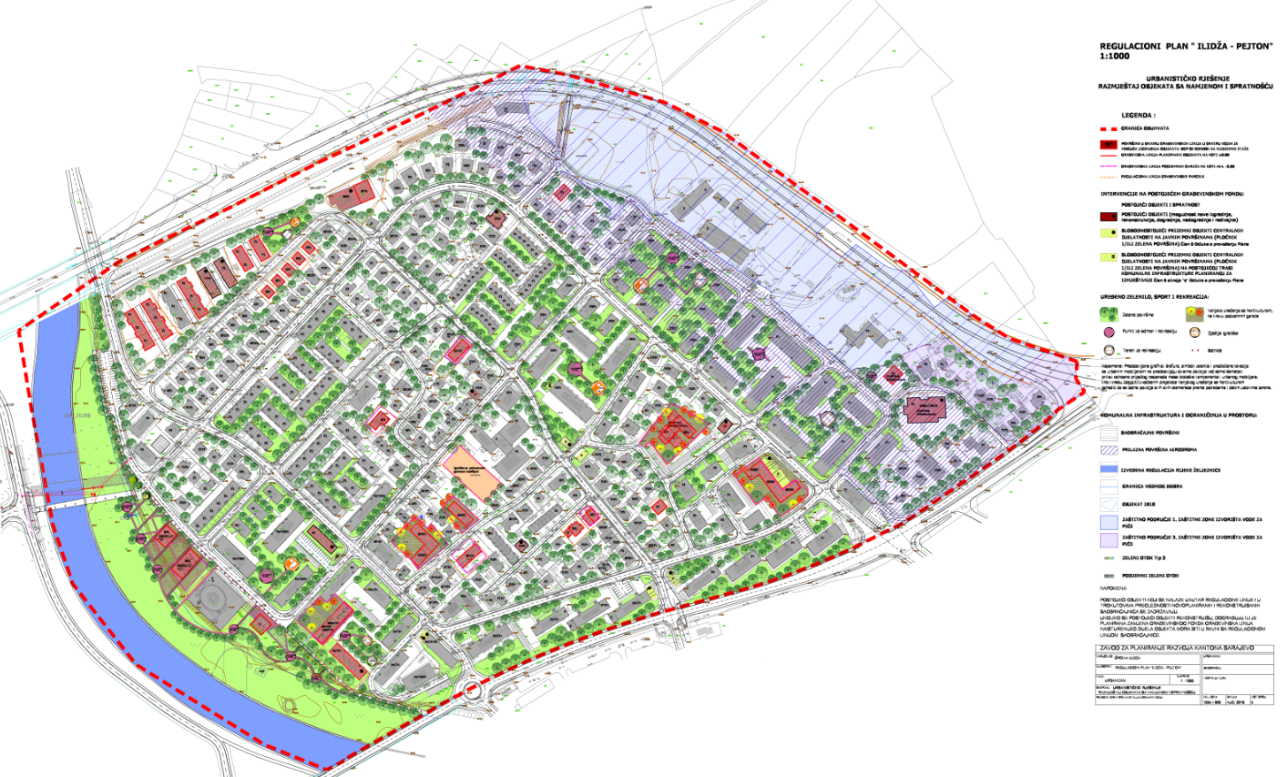
GRAPHIC OVERVIEW

Visual representation of the resource
Graphic overview for "Peyton" Regulatory Plan

CLASSIFICATION AND KEYWORDS

Categorization and keyword information
boundaries structure
boundaries structure category
climatologyMeteorologyAtmosphere
climatologyMeteorologyAtmosphere category
environment
environment category
society planningCadastre
society planningCadastre category
building land energy greenery Local plan purpose regulatory telecommunications traffic urban planning water supply and sewage

GEOGRAPHIC INFORMATION

Geographic extent and bounding box
Not specified

TEMPORAL INFORMATION

Temporal coverage and dates
2018-07-26
July 26, 2018
Not specified
May 31, 2024

QUALITY AND CONFORMANCE

Data quality and standards conformance

- Law on Spatial Planning and Land Use at the level of the Federation of Bosnia and Herzegovina ("Official Gazette of the Federation of Bosnia and Herzegovina", number 2/06, 72/07, 32/08, 4/10, 13/10, 45/10, 85/21 and 92/21) - Law on Spatial Planning ("Official Gazette of the Canton of Sarajevo", number 24/17) - Regulation on a unified methodology for the preparation of spatial planning documents ("Official Gazette of the Federation of BiH", number 63/04, 50/07) - Law on the Motorway on Corridor Vc ("Official Gazette of the Federation of BiH", number 8/13) - Law on Roads of the FBiH ("Official Gazette of the FBiH", number 12/10, 16/10 and 66/13) - Law on Environmental Protection ("Official Gazette of the FBiH", number 33/03) - Law on Water ("Official Gazette of the FBiH", number 70/06) - Law on Construction land ("Official Gazette of FBiH", number 25/03)

1000
ISO 19139
Conformant

ACCESS AND DISTRIBUTION

Access constraints and distribution information

other Restrictions

Not specified

Not specified

CONTACT INFORMATION

Responsible parties and contact details
Sarajevo Canton Development Planning Institute
Publisher
Email: info@zpr.ks.gov.ba
Website: https://zpr.ks.gov.ba
Sarajevo Canton Development Planning Institute
Metadata Contact
Contact: Metadata Contact
Email: info@zpr.ks.gov.ba

METADATA DETAILS

Information about this metadata record
English
Oct. 30, 2025
51400dd3-8e1d-45a4-b70f-408678751c99