BASIC INFORMATION

Core identification information for the metadata record
Amendments to the regulatory plan "PDI - Bosnia"
Bosnia and Herzegovina (bih)

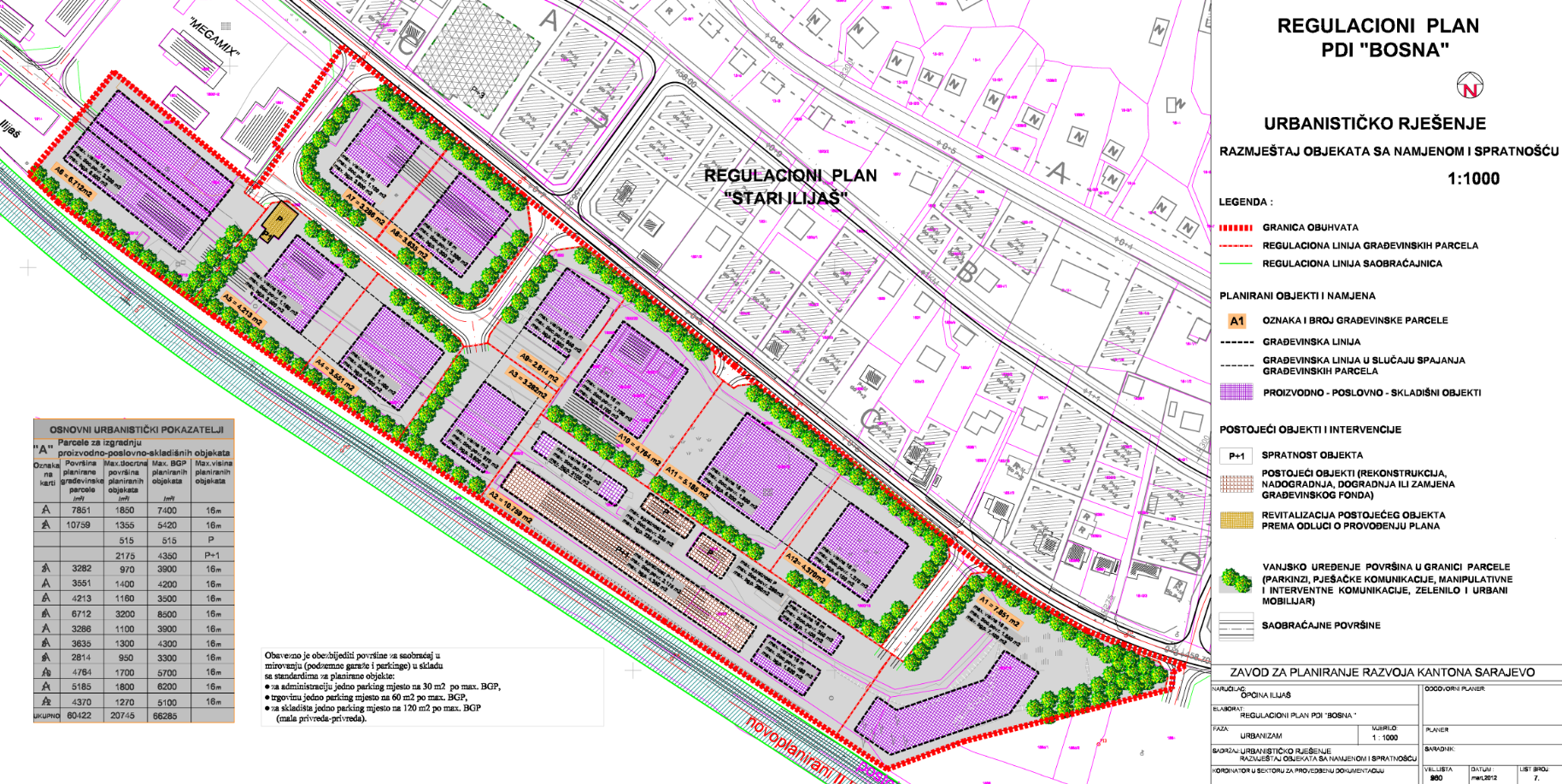
The area of 6.5 ha, included by the Plan boundary, is located on the right side of the Bosna River, and includes part of the former Šipad timber mill. It is limited to the northeast by Bosanski put Street, to the southeast by the individual housing zone, to the southwest by the Šamac - Sarajevo railway, and to the northwest by the economic zone. According to the Urban Plan of the City of Sarajevo, for the urban area of Ilijaš, for the period from 1986 to 2015, the subject area is located in the zone of "economic zones and small businesses". Before privatization, there was one economic entity on this site - the Šipad timber mill - as a single functional unit, with an internal traffic and other infrastructure network. The total area of 15.0 ha, with privatization, comes into the ownership of several owners, and in accordance with the resulting situation, the development of the Plan was initiated for the area of 6.5 ha. Given that the area covered by the Plan is mostly devastated and that only the capacity of the sawmill plant with accompanying facilities is in function, the spatial organization is focused on the formation of new construction plots for the construction of production-business-storage capacities. The production processes of the planned production and storage facilities must be clean, environmentally friendly, in accordance with EU standards, i.e. based on modern production facilities within a specific activity. The proposed spatial organization plan plans eleven plots for the construction of new capacities and defines a twelfth plot for the complex of the existing sawmill, for which the possibility of reconstruction is envisaged.

Dataset
English

GRAPHIC OVERVIEW

Visual representation of the resource
Graphic overview for Amendments to the regulatory plan "PDI - Bosnia"

CLASSIFICATION AND KEYWORDS

Categorization and keyword information
boundaries structure
boundaries structure category
climatologyMeteorologyAtmosphere
climatologyMeteorologyAtmosphere category
environment
environment category
society planningCadastre
society planningCadastre category
building land energy greenery Local plan purpose regulatory telecommunications traffic urban planning water supply and sewage

GEOGRAPHIC INFORMATION

Geographic extent and bounding box
Not specified

TEMPORAL INFORMATION

Temporal coverage and dates
2017-11-30
Nov. 30, 2017
Not specified
May 31, 2024

QUALITY AND CONFORMANCE

Data quality and standards conformance

- Law on Spatial Planning and Land Use at the level of the Federation of Bosnia and Herzegovina ("Official Gazette of the Federation of Bosnia and Herzegovina", number 2/06, 72/07, 32/08, 4/10, 13/10, 45/10, 85/21 and 92/21) - Law on Spatial Planning ("Official Gazette of the Canton of Sarajevo", number 24/17) - Regulation on a unified methodology for the preparation of spatial planning documents ("Official Gazette of the Federation of BiH", number 63/04, 50/07) - Law on the Motorway on Corridor Vc ("Official Gazette of the Federation of BiH", number 8/13) - Law on Roads of the FBiH ("Official Gazette of the FBiH", number 12/10, 16/10 and 66/13) - Law on Environmental Protection ("Official Gazette of the FBiH", number 33/03) - Law on Water ("Official Gazette of the FBiH", number 70/06) - Law on Construction land ("Official Gazette of FBiH", number 25/03)

1000
ISO 19139
Conformant

ACCESS AND DISTRIBUTION

Access constraints and distribution information

other Restrictions

Not specified

Not specified

CONTACT INFORMATION

Responsible parties and contact details
Sarajevo Canton Development Planning Institute
Publisher
Email: info@zpr.ks.gov.ba
Website: https://zpr.ks.gov.ba
Sarajevo Canton Development Planning Institute
Metadata Contact
Contact: Metadata Contact
Email: info@zpr.ks.gov.ba

METADATA DETAILS

Information about this metadata record
English
Oct. 30, 2025
c068de4a-cccc-40d4-b977-74e7e38888ef